Do you have an application where you need to transfer large heavy pallets inside or outside of your facility? Are you concerned about the loading on the floor? Are you in the market for a tough and durable trailer? Have you had an experience where other manufacturer's trailers just didn't hold up?
If so check out XT3427 below, and see how it filled our customer's material handling needs. Hamilton has years of experience and expertise in the design and manufacturing of custom material handling carts and trailers.


Statement of Understanding -
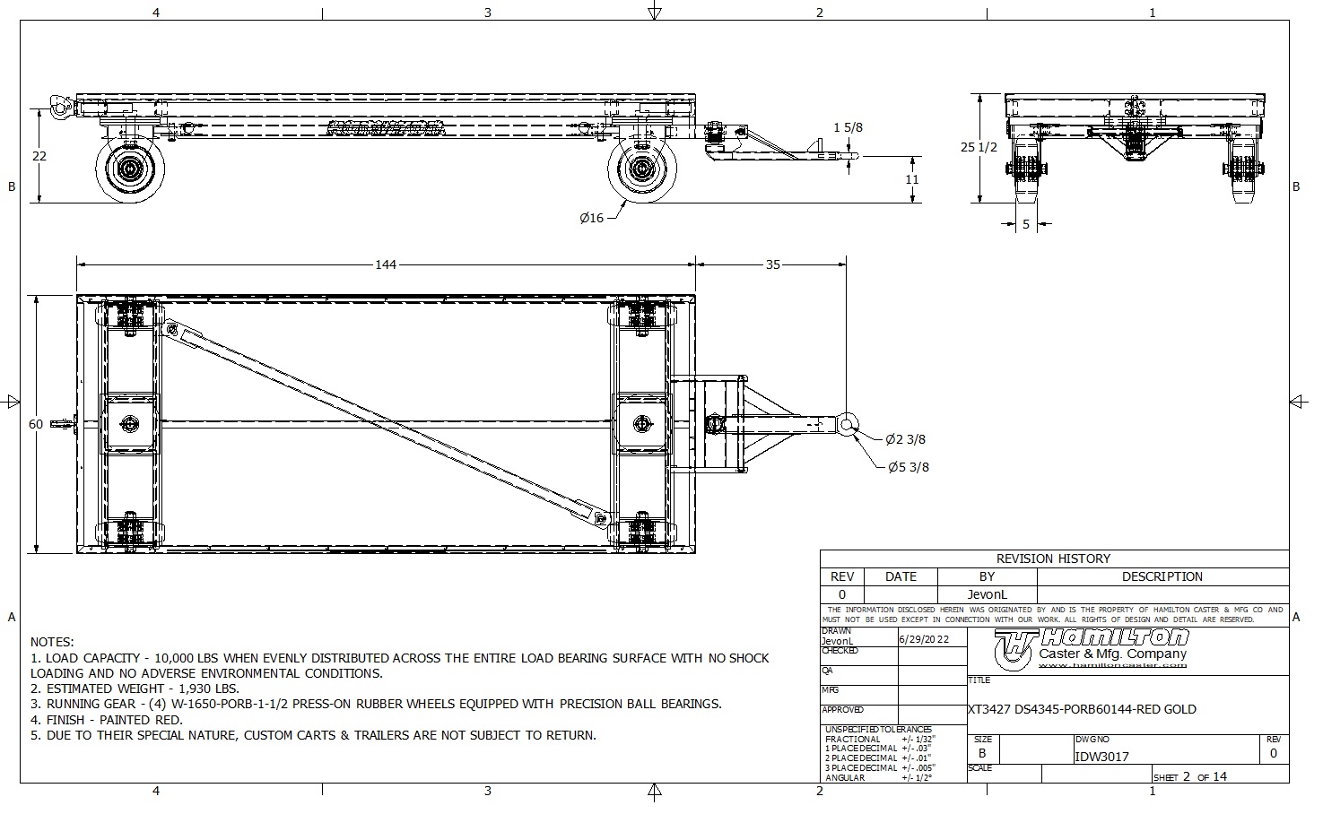
XT3427 is a Heavy duty four wheel steer trailer that is designed to handle large heavy pallets of canned goods weighing in at approximately 10,000 lbs. During peak production, the cart will operate at almost full capacity 24/7.
The tongue is spring loaded to hold itself at a distance of 11" above the floor. This allows the tow motor operator to quickly hook up and drop off individual trailers or entire trains.
The (4) press-on rubber tires are pressed onto a sold wheel blanks with large ball bearing that help reduce pulling forces and make them almost indestructable.

Cart Specifications -
Hamilton model number - XT3427
Frame Construction - Hardwood deck, structural steel frame
Deck Retainer - Steel angle iron caps
Steering Type - Four Wheel Steer
Deck Size - 60" x 144"
Deck Height - 24-1/2".
Capacity - 10,000 lbs
Trailer Weight – 1,930 lbs
Running Gear – (4) W-1650-PORB-1-1/2
Coupler – Loop type towing tongues, with forged steel loop, pintle at rear.
Tongue Leveling device - Adjustable spring loaded plunger assembly designed to hol tongue level at rouhgly 11" above flool. Capped with rubber to protect components from the weather.
Finish – Hamilton Red enamel

Customer Profile -
The customer is in the Industry of cultivating and processing certain types of vegetables.


Social Media Presence of Hamilton Carts and Trailers highlighting XT3327