Do you have an application where you need to transfer large heavy pallets inside or outside of your facility?  Are you concerned about down time, and trailability? Are you in the market for a tough and durable trailer?  Have you had an experience where other manufacturer's trailers just didn't hold up?  
If so check out XT2925 below, and see how it filled our customer's material handling needs. Hamilton has years of experience and expertise in the design and manufacturing of custom material handling carts and trailers. 


Statement of Understanding - 
XT2925 is a Heavy duty four wheel auto steer trailer that is designed to handle large heavy pallets of automotive parts weighing in at approximately 5,000 lbs.  During peak production, the cart will operate at almost full capacity 24/7.  Durability and reliability is of paramount importance.                                                       
The tongue is equipped with a 1-7/8" ball and socket coupler mounted at a distance of 6-7/8" above the floor.  The ball and socket coupler ensures maximum trailability by removing slop from the connection
The (4) soft poly wheels tires are cast onto a cnc machined cast iron center with ball bearing that help reduce pulling forces which alleviates un-necessary stress on the tuggers.                                                                                                                                                                                                                     
 

 
 
Cart Specifications -

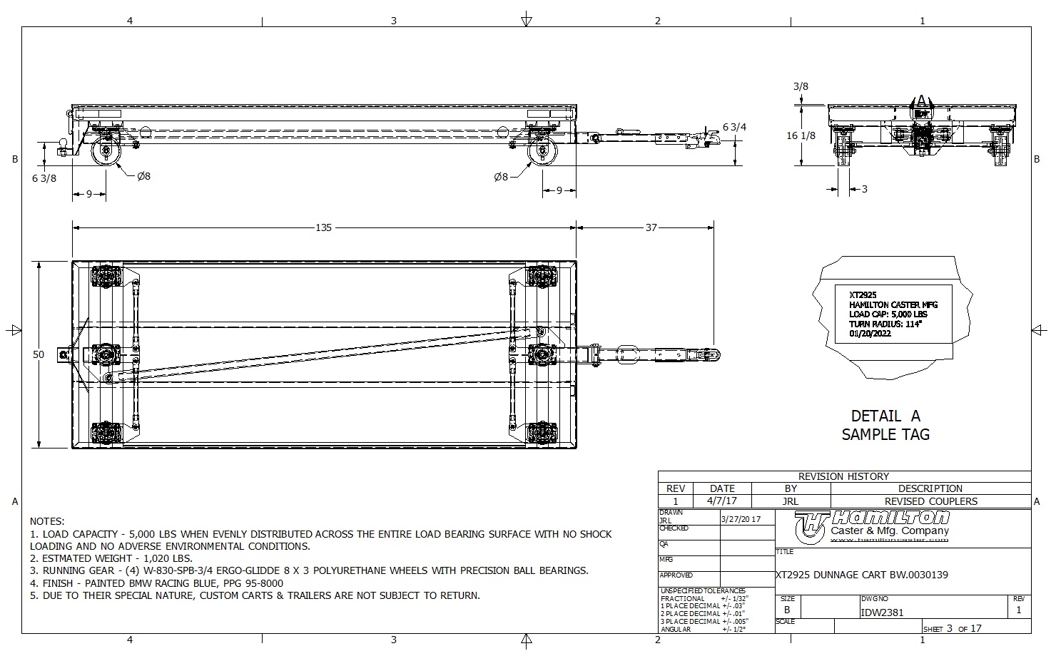
Hamilton model number - XT2925  
Identification - Data tags including Part Number, Manufacturer, Load Capacity, Turning Radius, Date of manufacture.                 
Frame Construction - Safety plate steel deck, structural steel frame
Deck Retainer - 3/8" steel perimeter lip
Steering Type - Four Wheel Auto Steer
Deck Size - 50" x 135"
Deck Height - 16-1/8". 
Capacity - 5,000 lbs
Trailer Weight – 1,020 lbs
Running Gear – (4) W-830-SPB-3/4 Soft Polyurethane wheels with precision sealed ball bearings.
Couplers – 1-7/8" Ball and Socket coupler 
Safety device - Lashing rings mounted on the tongue and near the ball coupler to allow the customer to use a safety chain to prevent accident in the event of an accidental un-coupling.
Finish – Customer specified Blue enamel 
 
 
 
 
 
 
 

 
Customer Profile -
The customer is in the Automotive Industry.  They use the trailers in order to supply parts to the assembly line, in a timely manner.  The trailers are used almost continueously 24 /7


Social Media Presence of Hamilton Carts and Trailers highlighting XT3327