Do you have an application where you need to transfer heavy metal inside or outside your facility? Do you need to change material from a vertical orientation to a horizontal oreintation. Are you in the market for a tough and durable trailer? Have you had an experience where other manufacturer's trailers just didn't hold up?
If so check out XT2836 below, and see how it filled our customer's material handling needs. Hamilton has years of experience and expertise in the design and manufacturing of custom material handling carts and trailers.


Statement of Understanding -
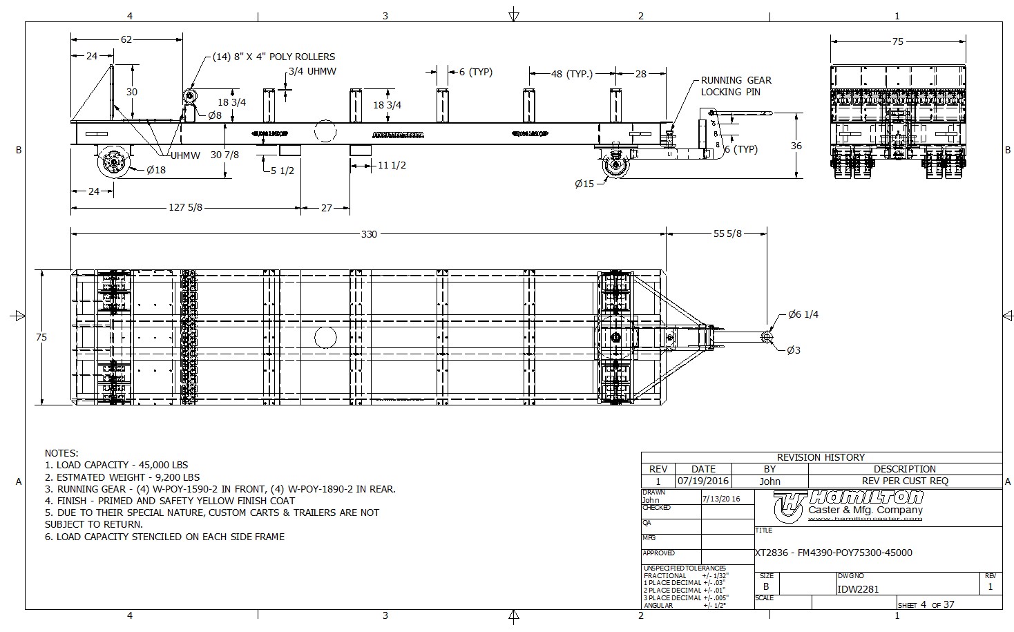
XT2836 Aluminum billet / slab trailer is designed to take billets and slabs that are suspended from a crane in the vertical position, and lay them down horizontaly onto the trailers. Once in the horizontal position, the loaded trailer is towed to its unloading destination, and subsequently unloaded.
The trailer's UHMW lined backing plates and polyurethane pivot rollers enable the billets and slabs to begin the laying down process. The backing plate keep the product from sliding off the rear of the trailer as the billet is laid down. The polyurethane rollers protects the billet / slabs from scuffing and other damage throughout the process.
UHMW lined risers keep load off of the trailer to allow access via crane and forklift. The UHMW protects the load from damage.
Fork pockets are positioned directly below the center of gravty of the unloaded trailer. This allows the trailer to be picked up and moved by a fork truck, while keeping the trailer balanced.
Cart Specifications -
Hamilton model number - XT2836
Frame Construction - Open frame, structural steel.
Steering Type - Fifth Wheel Steer trailer
Deck Size - 75" x 330"
Deck Height - 30-7/8" to top of frame, risers add an additional 18-3/4".
Capacity - 45,000 lbs
Trailer Weight – 9,200 lbs
Running Gear – W-POY-1890-2 / W-POY-1590-2
Load Support – (5) UHMW lined cross rails
Lifting Points – (2) Fork pockets designed for lifting an empty trailer
Coupler – Loop type towing tongue, with (4) mounting locations to accomodate different coupler heights. Lockout pin to facilitate straight line movement when desired.
Finish – Safety Yellow Epoxy
Stencil - Load capacity stenciled on both side rails
Safety – ODOT Conspicuity Tape for increased visibility


Customer Profile -
The customer is one of North Americas largest manufacturers of aluminum billet and slab. Operating multiple facilities across the United States and Canada they have the capability of producing hundreds of million tons of aluminum product.


Social Media Presence of Hamilton Carts and Trailers highlighting XT2836